Những khoảng không nhà xen lẫn những rèm cây xanh mát giúp người ở hòa mình với thiên nhiên ở mọi thời điểm.

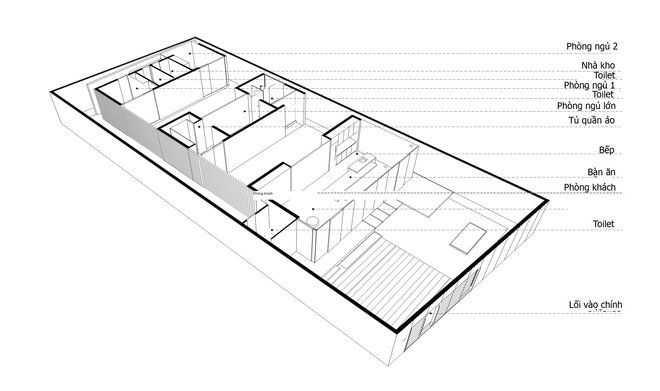
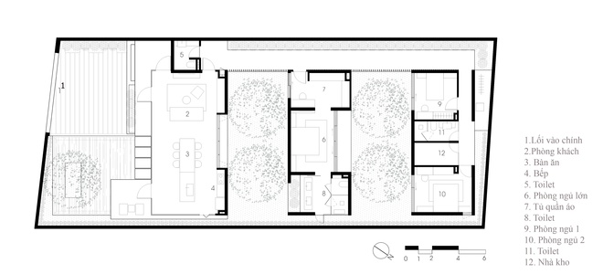
Ngôi nhà chỉ có một tầng, với các căn phòng giống như các “hộc” chứa đựng công năng sử dụng bên trong, xen giữa là các “hộc” cảnh quan.

Kiến trúc sư Nguyễn Hoàng Mạnh và các đồng nghiệp tại MIA Design Studio gọi đây là nhà hộc kéo.

Ngôi nhà cho gia đình 4 người tại thành phố Vũng Tàu vừa hoàn thành hồi tháng 6 vừa qua. Chủ nhân là người yêu thích thiên nhiên và sự tươi mát.

Tổng diện tích khu đất là 470m2, trong đó hơn 60% dành cho tự nhiên. Khoảng 180m2 còn lại được chia thành một phòng khách + bếp, ba phòng ngủ, một nhà kho và ba toilet.

Các căn phòng nằm trên một phương nhưng việc tạo ra những vách ngăn so le khiến ta có cảm giác các khối phòng đặt lệch nhau như những hộc kéo đóng mở ngẫu nhiên.

Một hành lang dài xuyên suốt cả ngôi nhà, đi qua các căn phòng và ô sân vườn tự nhiên.

Hành lang này được nhấn nhá bởi hàng cây xanh đầy sức sống - như tấm rèm che giảm bớt cái nắng gay gắt, đồng thời cũng tạo những họa tiết thú vị và biến đổi linh hoạt khi ánh nắng xuyên qua.

Dù bạn ngồi ở bất kỳ phòng nào trong nhà, nhìn ra các phía cũng đều thấy màu xanh của tự nhiên.

Bên cạnh màu xanh cây cối, màu nâu của chất liệu gỗ và màu trắng từ các chất liệu sơn chính là hai màu chủ đạo của ngôi nhà. Sự kết hợp của các màu sắc này mang lại cảm giác mát mẻ, thư giãn.

Nhà bếp và bàn ăn nằm ngay bên cạnh phòng khách.

Phòng ngủ nhỏ dành cho con, có đầy đủ tủ quần áo, giá sách, góc học tập.

Toilet rộng rãi thoáng đãng ngay bên cạnh phòng ngủ lớn.

Khi đêm xuống, những bóng điện dưới đất hắt sáng lên tạo cảm giác lung linh, huyền ảo cho cả ngôi nhà.
Theo Hoàng Anh- Ảnh: Hirouyki Oki/VnExpress.net